Savoie > La Plagne > Champagny en Vanoise
Chalet 5* avec gouvernante et chef
Chalet LES 4 VENTS ***** 3 étage - 9 pièces 10 personnes - 410 m².
Chalet de luxe, GAMME CHAMPAGNY CASA
Le Chalet LES 4 VENTS est composé de :
NIVEAU 0 - REZ de JARDIN
- 1 entrée pour les skieurs avec ski-room, radiateurs sèche-chaussures, rangement des casques, et penderie pour les combinaisons.
- 1 salon TV et de jeux, faisant aussi Chambre enfants (jusqu’à 6 enfants).
- 1 salle de sports et de musculation
- 1 cabine Hammam avec douche
- En extérieur, bain nordique mis en service par l’équipe de réception du chalet.
- En extérieur, 1 terrasse avec table de repas.
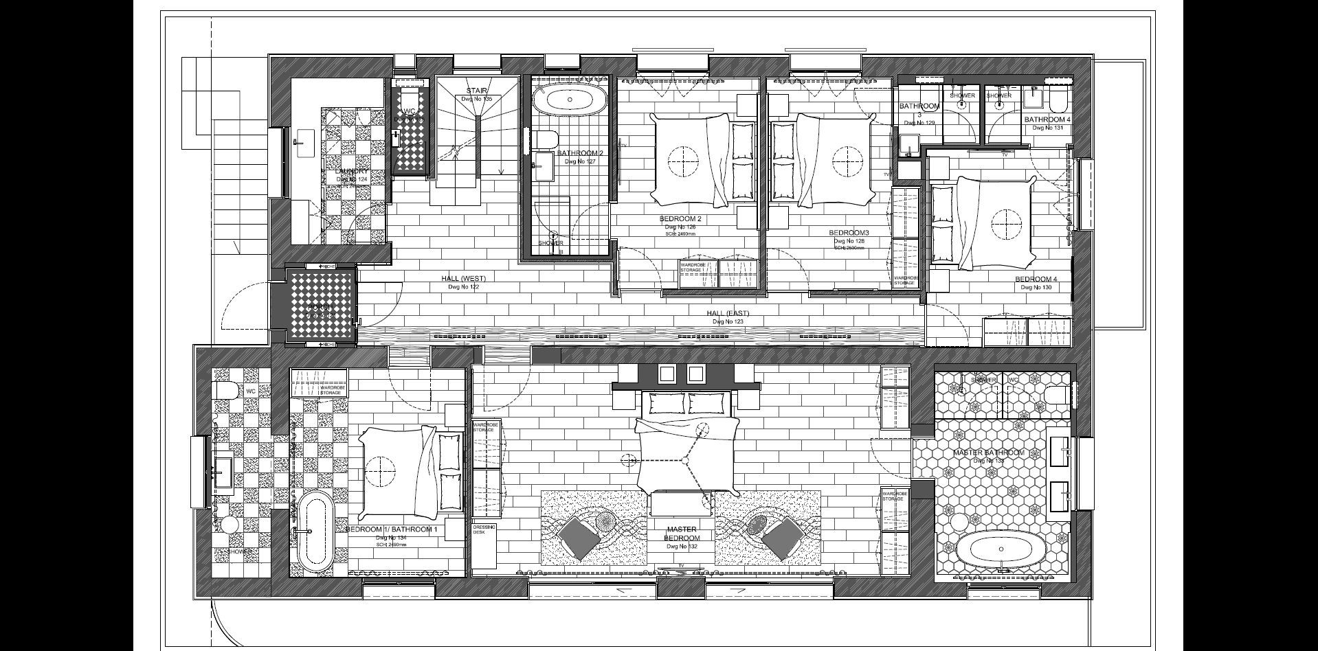
NIVEAU 1 - NIVEAU CHAMBRE
- 1 entrée et hall d’accueil.
- Suite N°1 avec lit double, salle de douche attenante, WC... et 1 baignoire sabot qui stylise la chambre, orientation SUD et OUEST.
- Suite N°2 avec lit double, salle de bains avec baignoire, douche, meuble vasque et WC. Orientation NORD.
- Suite N°3, avec lit double, salle de douche avec WC. Orientation NORD.
- Suite N°4, avec lit double, salle de douche, WC.
- MASTER SUITE, double fenêtre SUD et sortie sur balcon, lit double, salle de bain avec baignoire, douche à l’italienne, meuble vasque (2 vasques), WC.
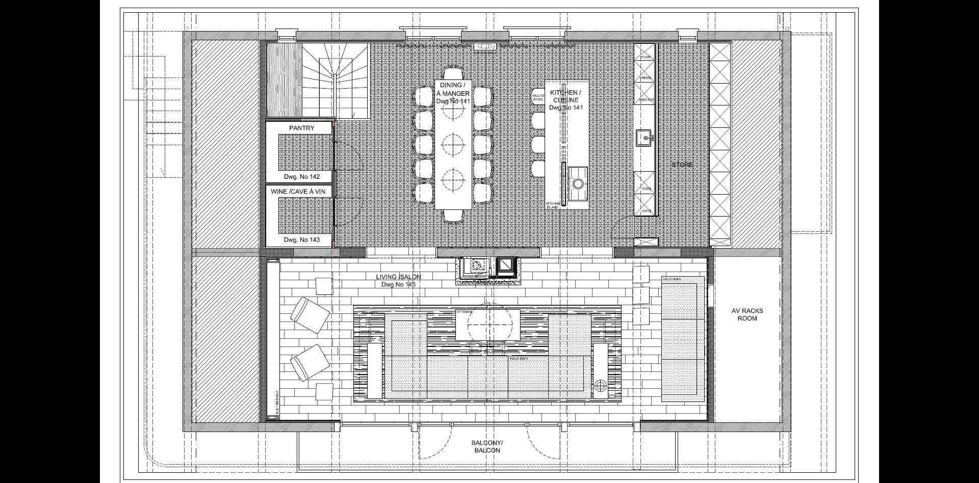
NIVEAU 2 - ESPACES COMMUNS en SOUS TOITURE
- 1 Cuisine entièrement équipée, avec ilot de cuisson et table bar. La cuisine est managée par le CHEF du chalet.
- Salle à manger avec grande table et chaises.
- 1 Cave à vins gérée par le chef.
- 1 Garde manger pour les produits frais, fruits et légumes.
- 1 grand salon SUD en sous toiture, avec ensemble de canapés et de sofas, cheminée, baies vitrées ouvrant sur le balcon en SUD.
Le Chalet LES 4 VENTS comporte les services hôteliers suivants :
- L’accueil directement au chalet par l’équipe hôtelière.
- Lits faits à l’arrivée, linge de toilette et de corps fournis.
- Le service des chambres pendant le séjour.
- Le service de restauration en demi-pension :
* 7 petits déjeuners, dont 5 cuisinés.
* 6 diners.
* Apéritifs avant le repas.
- Ménage fin de séjour
- Service de chauffeur.
- Au delà de 10 personnes, le service de demi-pension est à réserver en supplément du prix hébergement, et à régler directement à votre arrivée au prix de 850 € / adulte - 400 € / enfant.
Appartement classé :
A propos
Chalet 410 m²
9 pièce(s) - 5 chambre(s)
10 personnes
0 salle(s) de bain - 0 baignoire(s)
Animaux Acceptés : Non
Stationnement : Aucun
Accès mobilité réduite : Non
WIFI : Wifi Gratuit (dans la résidence)
Exposition : Sud
Fumeurs : Non-fumeur
Balcon
Terrasse
Récupération des clés dans votre agence
Equipements
Electroménager : Lave-linge, Lave vaisselle: 4 Couverts, Réfrigerateur, Micro-ondes
Equipements supplémentaires
Cheminée
Localisation
Pistes : Skis aux pieds Moins de 100 m
Situation : Proche des espaces enfants, Proche des lieux d'animation,
Composez votre séjour montagne n'a jamais été aussi simple avec Alpissime.
Réservez en un clic
Vos vacances seront confirmées dès que vous aurez finalisé votre réservation
Location PAP Vérifié
Toutes nos annonces sont 100% vérifiées par l'équipe Alpissime. Ici, pas d'arnaque à la location !
Composez votre séjour
A la prochaine étape, ajoutez des services et activités et payez jusqu'à 4x sans frais.
Informations pratiques
D'autres voyageurs ont aussi consulté
Voir les annonces similaires
Chalet 5* avec gouvernante et chef
Chalet LES 4 VENTS ***** 3 étage - 9 pièces 10 personnes - 410 m².
Chalet de luxe, GAMME CHAMPAGNY CASA
Le Chalet LES 4 VENTS est composé de :
NIVEAU 0 - REZ de JARDIN
- 1 entrée pour les skieurs avec ski-room, radiateurs sèche-chaussures, rangement des casques, et penderie pour les combinaisons.
- 1 salon TV et de jeux, faisant aussi Chambre enfants (jusqu’à 6 enfants).
- 1 salle de sports et de musculation
- 1 cabine Hammam avec douche
- En extérieur, bain nordique mis en service par l’équipe de réception du chalet.
- En extérieur, 1 terrasse avec table de repas.
NIVEAU 1 - NIVEAU CHAMBRE
- 1 entrée et hall d’accueil.
- Suite N°1 avec lit double, salle de douche attenante, WC... et 1 baignoire sabot qui stylise la chambre, orientation SUD et OUEST.
- Suite N°2 avec lit double, salle de bains avec baignoire, douche, meuble vasque et WC. Orientation NORD.
- Suite N°3, avec lit double, salle de douche avec WC. Orientation NORD.
- Suite N°4, avec lit double, salle de douche, WC.
- MASTER SUITE, double fenêtre SUD et sortie sur balcon, lit double, salle de bain avec baignoire, douche à l’italienne, meuble vasque (2 vasques), WC.
NIVEAU 2 - ESPACES COMMUNS en SOUS TOITURE
- 1 Cuisine entièrement équipée, avec ilot de cuisson et table bar. La cuisine est managée par le CHEF du chalet.
- Salle à manger avec grande table et chaises.
- 1 Cave à vins gérée par le chef.
- 1 Garde manger pour les produits frais, fruits et légumes.
- 1 grand salon SUD en sous toiture, avec ensemble de canapés et de sofas, cheminée, baies vitrées ouvrant sur le balcon en SUD.
Le Chalet LES 4 VENTS comporte les services hôteliers suivants :
- L’accueil directement au chalet par l’équipe hôtelière.
- Lits faits à l’arrivée, linge de toilette et de corps fournis.
- Le service des chambres pendant le séjour.
- Le service de restauration en demi-pension :
* 7 petits déjeuners, dont 5 cuisinés.
* 6 diners.
* Apéritifs avant le repas.
- Ménage fin de séjour
- Service de chauffeur.
- Au delà de 10 personnes, le service de demi-pension est à réserver en supplément du prix hébergement, et à régler directement à votre arrivée au prix de 850 € / adulte - 400 € / enfant.
Chalet de luxe, GAMME CHAMPAGNY CASA
Le Chalet LES 4 VENTS est composé de :
NIVEAU 0 - REZ de JARDIN
- 1 entrée pour les skieurs avec ski-room, radiateurs sèche-chaussures, rangement des casques, et penderie pour les combinaisons.
- 1 salon TV et de jeux, faisant aussi Chambre enfants (jusqu’à 6 enfants).
- 1 salle de sports et de musculation
- 1 cabine Hammam avec douche
- En extérieur, bain nordique mis en service par l’équipe de réception du chalet.
- En extérieur, 1 terrasse avec table de repas.
NIVEAU 1 - NIVEAU CHAMBRE
- 1 entrée et hall d’accueil.
- Suite N°1 avec lit double, salle de douche attenante, WC... et 1 baignoire sabot qui stylise la chambre, orientation SUD et OUEST.
- Suite N°2 avec lit double, salle de bains avec baignoire, douche, meuble vasque et WC. Orientation NORD.
- Suite N°3, avec lit double, salle de douche avec WC. Orientation NORD.
- Suite N°4, avec lit double, salle de douche, WC.
- MASTER SUITE, double fenêtre SUD et sortie sur balcon, lit double, salle de bain avec baignoire, douche à l’italienne, meuble vasque (2 vasques), WC.
NIVEAU 2 - ESPACES COMMUNS en SOUS TOITURE
- 1 Cuisine entièrement équipée, avec ilot de cuisson et table bar. La cuisine est managée par le CHEF du chalet.
- Salle à manger avec grande table et chaises.
- 1 Cave à vins gérée par le chef.
- 1 Garde manger pour les produits frais, fruits et légumes.
- 1 grand salon SUD en sous toiture, avec ensemble de canapés et de sofas, cheminée, baies vitrées ouvrant sur le balcon en SUD.
Le Chalet LES 4 VENTS comporte les services hôteliers suivants :
- L’accueil directement au chalet par l’équipe hôtelière.
- Lits faits à l’arrivée, linge de toilette et de corps fournis.
- Le service des chambres pendant le séjour.
- Le service de restauration en demi-pension :
* 7 petits déjeuners, dont 5 cuisinés.
* 6 diners.
* Apéritifs avant le repas.
- Ménage fin de séjour
- Service de chauffeur.
- Au delà de 10 personnes, le service de demi-pension est à réserver en supplément du prix hébergement, et à régler directement à votre arrivée au prix de 850 € / adulte - 400 € / enfant.
Appartement classé :
Chalet 410 m²
9 pièce(s) - 5 chambre(s)
10 personnes
0 salle(s) de bain - 0 baignoire(s)
Animaux Acceptés : Non
Stationnement : Aucun
Accès mobilité réduite : Non
WIFI : Wifi Gratuit (dans la résidence)
Exposition : Sud
Fumeurs : Non-fumeur
Balcon
Terrasse

Electroménager : Lave-linge, Lave vaisselle: 4 Couverts, Réfrigerateur, Micro-ondes
Cheminée
Pistes : Skis aux pieds Moins de 100 m
Situation : Proche des espaces enfants, Proche des lieux d'animation,
Réservez en un clic
Vos vacances seront confirmées dès que vous aurez finalisé votre réservation
Location PAP Vérifié
Toutes nos annonces sont 100% vérifiées par l'équipe Alpissime. Ici, pas d'arnaque à la location !
Composez votre séjour
A la prochaine étape, ajoutez des services et activités et payez jusqu'à 4x sans frais.
Réservation
Recherche élargie : nous affichons les dates disponibles les plus proches de votre recherche originale
A propos
Propriétaire : Agence immobilière
Référence de l'annonce : 3131